Z41铸铁明杆闸阀
 |
 |
| Z41铸铁明杆闸阀 |
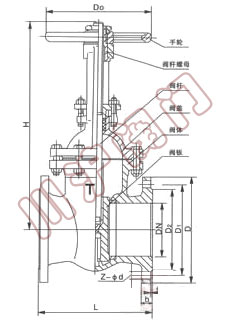
Z41铸铁明杆闸阀 结构图 |
一、Z41铸铁明杆闸阀 主要特点及用途
1.结构紧凑、设计合理,阀门刚性好,通道流畅,流阻系数小。
2.密封面采用不锈钢和硬质合金,使用寿命长。
3.采用柔性石墨填料、密封可靠,操作轻便灵活。
4.驱动方式分手动、电动、气动、齿轮传动,结构型式:弹性楔式单闸板、刚性楔式单闸板和双闸板型号。
5.广泛适用于石油化工,火力发电厂等油品、水蒸汽管路上作接通或截断管路中介质的启闭装置。
二、Z41铸铁明杆闸阀 执行标准
设计制造:按GB/T12234-89的规定
结构长度:按GB/T12221-89的规定
法兰面尺寸:按JB79 GB/T9112-9131的规定
检查与试验:按JB/T9092-99 GB/T13927-92的规定
传动方式:手动、电动、齿轮传动
三、Z41铸铁明杆闸阀 主要技术参数
| 型号 |
公称压力MPa |
试验压力MPa |
工作温度 |
使用介质 |
| 密封 |
强度 |
| Z41T-10 |
1.0 |
1.1 |
1.5 |
≤200℃ |
水、蒸汽、油 |
| Z41T-10 |
| Z41W-10 |
≤100℃ |
油品、煤气 |
四、Z41铸铁明杆闸阀 主要零件材料
| 型号 |
阀体、阀盖、闸板 |
闸板 |
密封圈 |
阀杆螺母 |
阀 杆 |
填 料 |
| Z41H-10 |
灰铸铁、铸 钢 |
碳钢+合金钢 |
不锈钢、合金钢
|
青铜 |
碳钢、不锈钢 |
浸油石棉盘根 |
| Z41W-10 |
灰铸铁 |
灰铸铁 |
黄铜 |
碳钢 |
| Z41T-10 |
灰铸铁 |
灰铸铁+黄铜 |
黄铜 |
碳钢、黄铜 |
五、Z41铸铁明杆闸阀 主要外形尺寸及重量
| 公称通径DN(mm) |
尺寸(mm) |
重量
(kg) |
| L |
D |
D1 |
D2 |
b-f |
Z-d |
H |
D0 |
| 40 |
165 |
145 |
110 |
85 |
18-3 |
4-18 |
245 |
135 |
20 |
| 50 |
180 |
160 |
125 |
100 |
20-3 |
4-18 |
286 |
180 |
26 |
| 65 |
190 |
180 |
145 |
120 |
20-3 |
4-18 |
320 |
180 |
35 |
| 80 |
203 |
195 |
160 |
135 |
22-3 |
4-18 |
373 |
200 |
45 |
| 100 |
229 |
215 |
180 |
155 |
22-3 |
8-18 |
428 |
200 |
60 |
| 125 |
250 |
245 |
210 |
185 |
24-3 |
8-18 |
513 |
240 |
85 |
| 150 |
270 |
280 |
240 |
210 |
24-3 |
8-23 |
582 |
240 |
125 |
| 200 |
292 |
335 |
295 |
265 |
26-3 |
8-23 |
730 |
320 |
180 |
| 250 |
330 |
390 |
350 |
320 |
28-3 |
12-23 |
897 |
320 |
240 |
| 300 |
356 |
440 |
400 |
368 |
28-3 |
12-23 |
1032 |
400 |
360 |
| 350 |
381 |
500 |
460 |
428 |
30-3 |
16-23 |
1170 |
400 |
400 |
| 400 |
406 |
565 |
515 |
482 |
32-3 |
16-25 |
1330 |
500 |
500 |
| 450 |
432 |
615 |
565 |
532 |
32-3 |
20-25 |
1460 |
500 |
590 |
| 500 |
457 |
670 |
620 |
585 |
34-3 |
20-25 |
1650 |
500 |
680 |